_ _

////////////////////0020︎717︎
    


OU Medical Center


07/19 _ 06/20



Various Remodel Projects
OKC / Edmond, OK


︎︎︎ Construction Documents
︎︎︎ MEP, Physist Coordination
︎︎︎ Schematic Design
︎︎︎ Programming



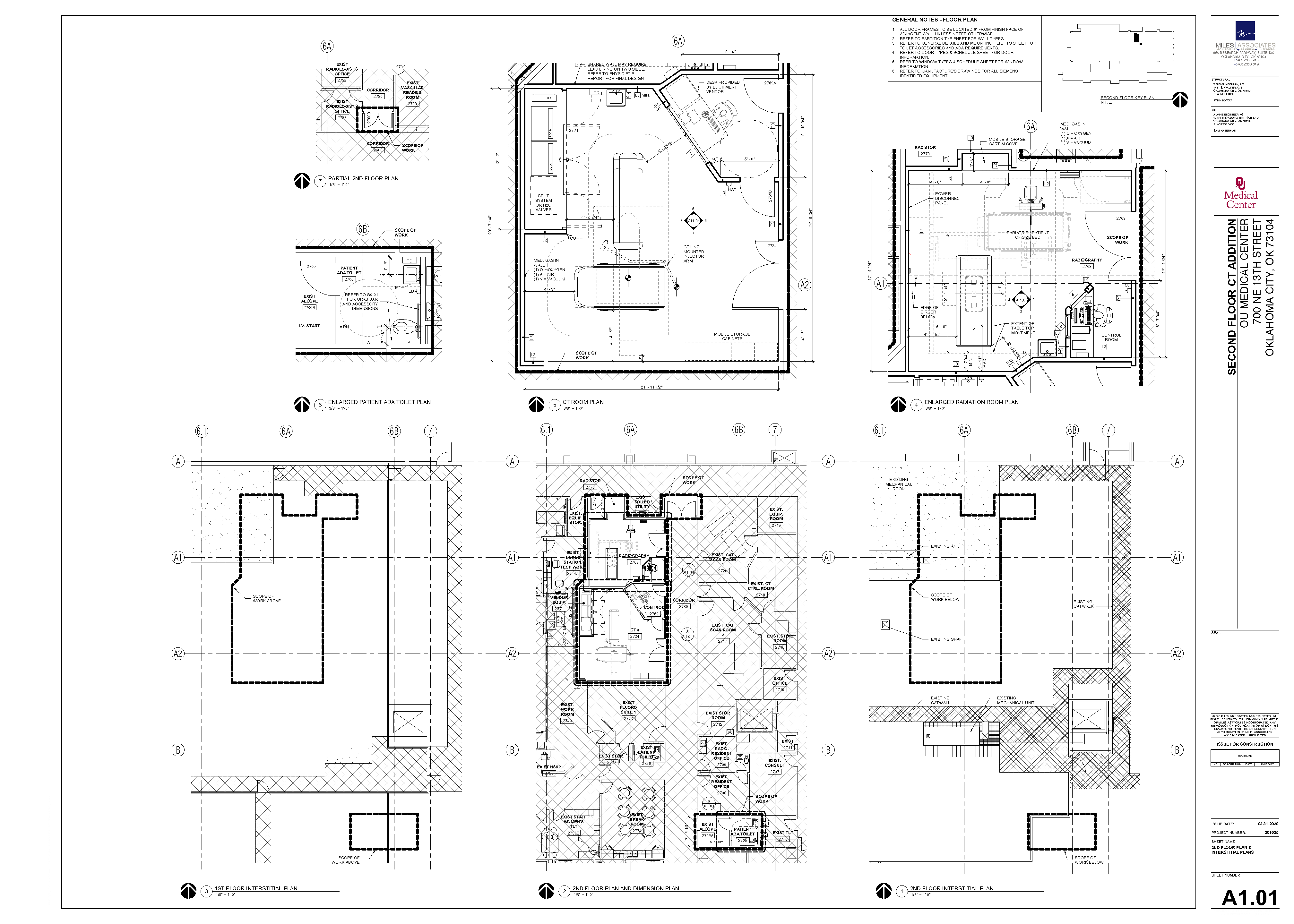
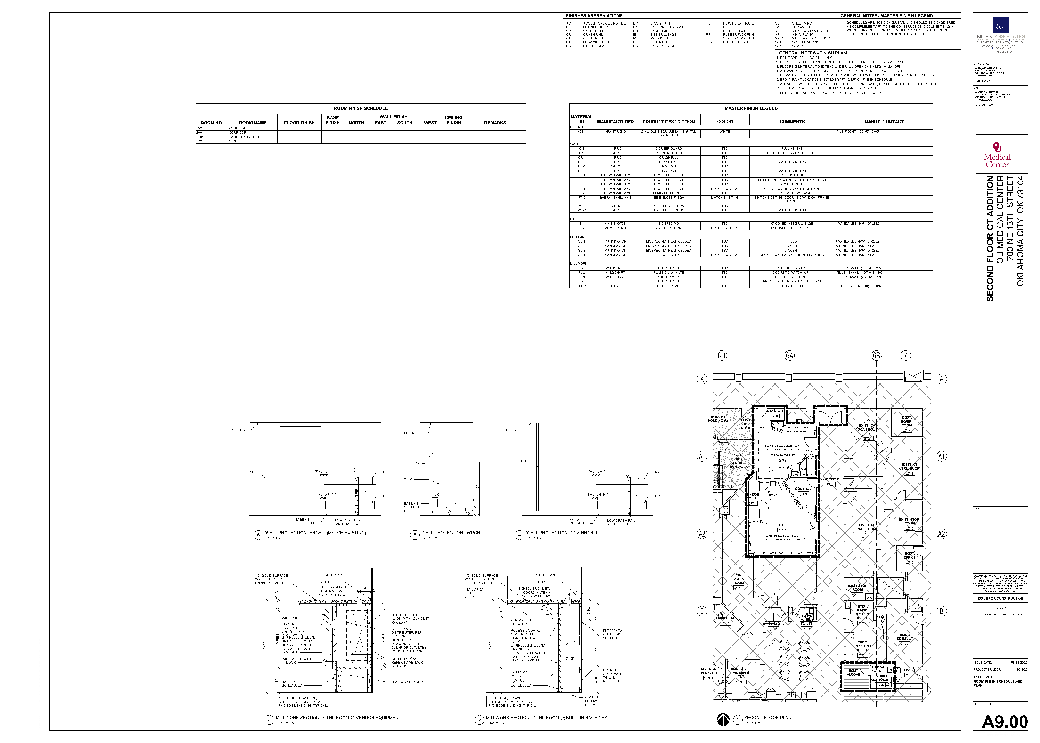
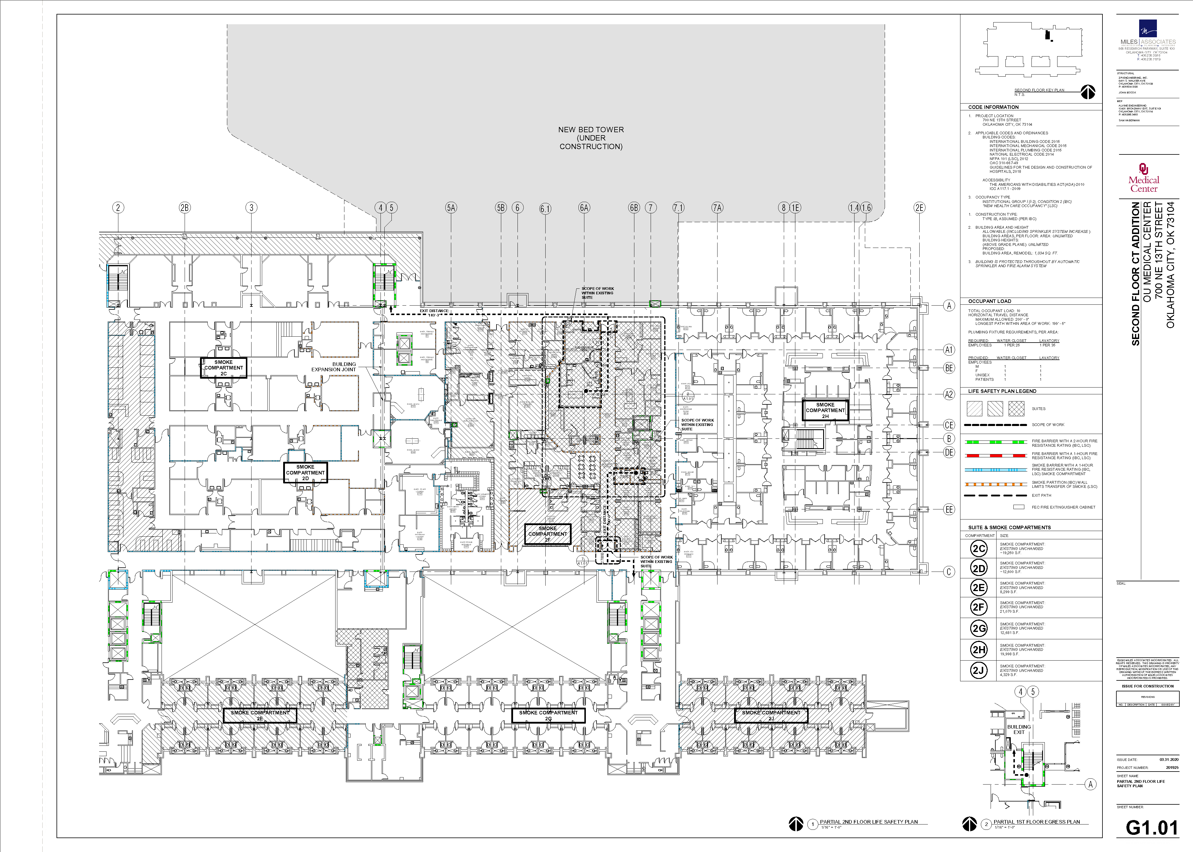
Miles Associates has a long-standing relationship with OU Medical Center dating back decades.  Throughout my time with Miles I have participated in bringing small remodel projects online as new space opened in the new building. 

CT Scanner Addition/Remodel (Mobile CT)
Radiation Table Remodel
Pharmacy Remodel
Histo/Cyto Laboratory Relocation

ICU Burn Unit Remodel


Routing and coordination are critical in existing infrastructure like this.  Careful surveying and frequent communication with consultants is critical to avoid conflicts in the field.  Listening and  detailed notes helped guide me through the sea of acronyms and specialized terminology.  It’s thrilling to expand into this new typology, adding to my capabilities.

example drawings






©2026 Jacob Gann